

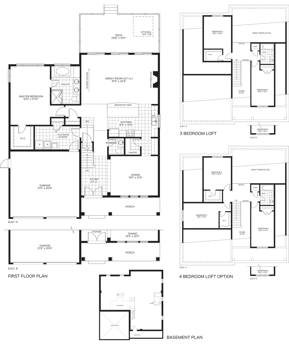
The Prescot
2,300 SQ.FT. - bungalow with loft
2,561 SQ.FT. - 4 bedroom option
PDF
Specifications are subject to change without notice. Actual usable space may vary from stated floor area. All room dimensions shown are approximate. All renderings are artist’s concept. E. & O. E.
